Flat
It extends over two levels, It has a rooftop garden with a furnished patio and outdoor shower.
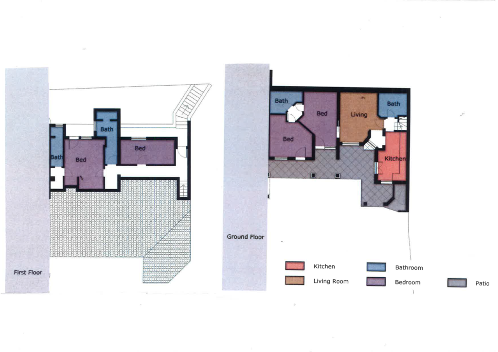
On the ground floor lounge, kitchen bathroom plus 1 double room 1 room with 2 bed and bathroom.
Upstairs 1 master bedroom with en suite bathroom and a bedroom with 2 beds and another bathroom.















